大府市梶田町5丁目57番『仲介手数料無料』新築戸建て

4,399.5万円

愛知県大府市梶田町5丁目57番

東海道本線「共和」駅徒歩19分

東海道本線「南大高」駅徒歩41分

東海道本線「大府」駅徒歩48分

価格
4,399.5万円
間取り/建物面積
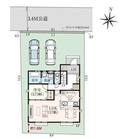
4LDK/99.78㎡
所在地
愛知県大府市梶田町5丁目57番
築年
2026年3月(予定)
駐車
交通

東海道本線共和」駅 徒歩19分

東海道本線南大高」駅 徒歩41分

東海道本線大府」駅 徒歩48分

大府市梶田町5丁目57番『仲介手数料無料』新築戸建ての基本情報

物件名
大府市梶田町5丁目57番『仲介手数料無料』新築戸建て
価格
4,399.5万円
建物面積
99.78㎡
土地面積
39.96坪(132.11㎡)
築年月
2026年3月(予定)
総戸数
1戸
所在地
愛知県大府市梶田町5丁目57番
交通

東海道本線共和」駅 徒歩19分

東海道本線南大高」駅 徒歩41分

東海道本線大府」駅 徒歩48分

大府市梶田町5丁目57番『仲介手数料無料』新築戸建ての詳細情報

設備条件
  • 閑静な住宅地
  • 耐震構造
設備(その他)
    公営水道 公共下水 都市ガス 中部電力
駐車場/月額
有/-
土地権利
所有権
国土法届出
不要
用途地域
第一種住居
取引態様
一般媒介
引渡し
相談

大府市梶田町5丁目57番『仲介手数料無料』新築戸建てで募集中の物件

  1. 1号棟

    30.18坪 (99.78㎡)

    4,3995,000円(145.78万円/坪)

周辺施設

  • アスク共和東保育園の画像

    保育園

    アスク共和東保育園

    375m(5分)

  • ゲンキー 大府東新店の画像

    ドラッグストア

    ゲンキー 大府東新店

    525m(7分)

  • セブンイレブン大府梶田町4丁目店の画像

    コンビニエンスストア

    セブンイレブン大府梶田町4丁目店

    633m(8分)

  • スギ薬局大府北店の画像

    ドラッグストア

    スギ薬局大府北店

    653m(9分)

  • JAあいち知多東栄支店の画像

    銀行

    JAあいち知多東栄支店

    669m(9分)

  • 大府市立北山小学校の画像

    小学校

    大府市立北山小学校

    763m(10分)

  • 共和郵便局の画像

    郵便局

    共和郵便局

    976m(13分)

  • 至学館大学附属幼稚園の画像

    幼稚園

    至学館大学附属幼稚園

    1101m(14分)

  • マックスバリュ大府店の画像

    スーパー

    マックスバリュ大府店

    1108m(14分)

  • 大府市立大府北中学校の画像

    中学校

    大府市立大府北中学校

    1143m(15分)

  • FEEL(フィール) 有松ジャンボリーの画像

    スーパー

    FEEL(フィール) 有松ジャンボリー

    1753m(22分)

近隣の物件

  1. 大府市長根町6丁目

    4SLDK (106.40㎡)

    3,999万円

  2. 大府市桃山町1丁目

    4LDK (91.52㎡)

    3,890万円

  3. 大府市神田町3丁目

    4LDK (104.08㎡)

    3,690万円

  4. 大府市横根町石丸

    4LDK (101.04㎡)

    3,890万円

よく見られている物件

  1. 東海市養父町南堀畑

    4LDK (97.94㎡)

    3,290万円

  2. 東海市中央町6丁目

    4LDK (102.07㎡)

    3,690万円

  3. 大府市長根町6丁目

    4SLDK (106.40㎡)

    3,999万円

  4. 東海市荒尾町細高根

    4LDK (94.78㎡)

    3,299万円

大府市梶田町5丁目57番『仲介手数料無料』新築戸建て

お気軽にお問い合わせください

無料お問い合わせ

株式会社アーキ

0120-613-660

09:00~18:00

(休:水曜日)