高浜市稗田町5丁目7-2『仲介手数料無料』新築戸建て 1号棟

2,790万円

愛知県高浜市稗田町5丁目7-2

名鉄三河線「高浜港」駅徒歩6分

名鉄三河線「三河高浜」駅徒歩17分

名鉄三河線「北新川」駅徒歩21分

価格
2,790万円
間取り
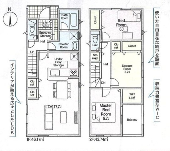
3SLDK
土地面積
120.95㎡
所在地
愛知県高浜市稗田町5丁目7-2
交通

名鉄三河線高浜港」駅 徒歩6分

名鉄三河線三河高浜」駅 徒歩17分

名鉄三河線北新川」駅 徒歩21分

建物面積
102.87㎡
築年月
2026年5月(予定)

現地見学会

日時  09:00 ~ 18:00
  • ※事前に必ずお問い合わせください
  • ◇◆◇ 仲介手数料無料対象物件 ◇◆◇ 

    まずは ◆◆ フリーダイヤル 0120-613-660 ◆◆ までお気軽にご連絡ください♪

    ■ご案内につきましては現地でのお待ち合わせ、弊社へのご来店などご相談ください。

    ■平日、土日祝、時間帯も朝早い時間をご希望の方、夜遅い時間をご希望の方などお客様のご希望・生活に合わせてご案内させていただきますので遠慮なくおっしゃってください。

    ■当物件の周辺環境、お客様のご希望に合わせた物件もご案内いたします。

    ■物件のメリット・デメリットもお伝えいたします。

    ■お客様のご希望が叶うまでしっかりサポートさせていただきます。



    ◆◇◇◆ 「住宅ローン」もおまかせください! ◆◇◇◆

    お客様にあった住宅ローンをご提案させていただきますのでご安心ください。

    ■転職して間もないけど大丈夫? 

    ■自己資金がゼロだけど大丈夫?

    ■マイカーローンなど借り入れがあるけど大丈夫?

    ■自分の収入でいくら位の物件を検討したらいいのかアドバイスが欲しい。

    ■銀行の保証料って何のこと?

    ■月々の支払いを?円以内におさえたいけど可能なのかな?

    ■住宅購入はまだ先のことだと考えているけど相談しても大丈夫?

    ■以前他社で住宅ローンが通らなかったことがあるけど・・・?

    などなど何でもご相談ください。

    まずは ◆◆ フリーダイヤル 0120-613-660 ◆◆ までお気軽にご連絡ください♪

    そのほかにも気になること、不安なことなど何でもご相談ください。

物件の特徴

  • TVモニタ付きインターホン

  • カウンターキッチン

担当者のコメント

岸上 哲志

【 仲介手数料 無料 】  ◇平日、土日ご都合に合わせてご案内いたします◇ 

◆◇◇◆ 新築限定キャンペーン中 https://archi-es.com ◆◇◇◆
 
●高浜小学校徒歩8分
●南中学校徒歩6分

~おすすめポイント~
 1号棟 
○「高浜港」駅徒歩6分
○住環境良好
○広々LDK18.5帖に隣接する畳コーナー3帖
○南面バルコニーに面した明るい主寝室 
 ウォークインクローゼット1.5帖設置
○収納力豊富な納戸2帖
○並列駐車
○耐震+制震の家
○SAFE365で地震の揺れを吸収する家

◆◇◇◆ フリーダイヤル 0120-613-660 ◆◇◇◆までお気軽にご連絡ください。

基本情報

販売戸数
3戸
総戸数
3戸
間取り / 詳細
3SLDK
 1号棟 1F:LDK18.5帖に隣接する畳コーナー3帖はお子様の遊び場・奥様の家事室に便利!2F:洋室6.7帖 WIC1.5帖設置!洋室6.7帖・洋室5.2帖 CL設置♪納戸2帖!南面バルコニー♪
向き
-
建物面積(坪数)
102.87㎡(31.11坪)
土地面積(坪数)
120.95㎡(36.58坪)
建ぺい率 /
容積率
60%/200%
築年月
2026年5月(予定)
駐車場 / 月額
有 / -
土地権利
所有権
土地
(敷金 / 保証金)
- / -
建物構造
木造 / 2階建
傾斜地部分面積
-
路地状敷地
-
私道負担面積
-
セットバック
要 記載なし
高圧線下面積
-
施工会社
-
用途地域
準工業
地目 / 地勢
宅地 / -
接道状況
一方(北 公道 3.8m 間口 6.6m)
国土法届出要否
不要
都市計画
市街化区域
総区画数 /
販売区画数
3区画/3区画
現況
未完成
その他
法令上の制限
-
取引態様
一般媒介
引渡し
相談
取引条件の
有効期限
2026年04月24日

設備条件

設備条件
  • 陽当り良好 / 閑静な住宅地 / 建設住宅性能評価書付 / 現地見学会 / 都市ガス / 公営水道 / 公共下水 / 電気有 / システムキッチン / カウンターキッチン / 温水洗浄便座 / トイレ2ヶ所 / 浴室1坪以上 / 床下収納 / ウォークインクロゼット / 収納豊富 / TVモニタ付インターホン / 複層ガラス
設備(その他)
    中部電力・公営水道・公共下水・都市ガス

その他

物件番号
102162933
管理コード
-
建築確認番号
第HPA-26-01001-1号
情報更新日
2026年04月10日
次回更新予定日
2026年04月24日
取扱会社
  • 株式会社アーキ
  • 愛知県大府市江端町3丁目175 
  • TEL:0120-613-660
  • 愛知県知事 (3) 第22371号
  • (公社)愛知県宅地建物取引業協会会員
    東海不動産公正取引協議会加盟

高浜市稗田町5丁目7-2『仲介手数料無料』新築戸建ての他の物件

  1. 2号棟

    2SLDK (89.91㎡)

    2,590万円(95.26万円/坪)

  2. 3号棟

    3SLDK (89.10㎡)

    2,490万円(92.39万円/坪)

周辺施設

  • V・drug 高浜店の画像

    ドラッグストア

    V・drug 高浜店

    689m(9分)

  • バロー 高浜店の画像

    スーパー

    バロー 高浜店

    918m(12分)

  • 高浜市立高浜南部幼稚園の画像

    幼稚園

    高浜市立高浜南部幼稚園

    922m(12分)

  • ゲンキー 沢渡店の画像

    ドラッグストア

    ゲンキー 沢渡店

    1116m(14分)

支払いシミュレーション

月々の支払額

※実際の金額と異なる場合があります。

購入希望物件価格
万円
頭金
万円
金利
%
返済額(ボーナス1回分)
万円
返済期間

※ボーナスは自動で年2回分で計算されます。

近隣の物件

  1. 高浜市呉竹町7丁目3-45、3-53『仲介手数料無料』新築戸建て

    高浜市呉竹町7丁目

    4SLDK (105.18㎡)

    3,180万円

  2. 高浜市春日町7丁目3番14『仲介手数料無料』新築戸建て

    高浜市春日町7丁目

    4LDK (104.12㎡)

    2,7995,000

  3. 高浜市神明町六丁目3番32『仲介手数料無料』新築戸建て

    高浜市神明町6丁目

    5LDK (111.79㎡)

    3,680万円

  4. 高浜市本郷町3丁目17番、18番、19番、20番『仲介手数料無料』新築戸建て

    高浜市本郷町3丁目

    4LDK (100.61㎡)

    3,390万円

よく見られている物件

  1. 大府市長根町6丁目61番、62番『仲介手数料無料』新築戸建て

    大府市長根町6丁目

    4SLDK (106.40㎡)

    3,999万円

  2. 大府市桃山町1-363『仲介手数料無料』新築戸建て

    大府市桃山町1丁目

    4LDK (91.52㎡)

    3,690万円

  3. 大府市長根町6丁目61番、62番『仲介手数料無料』新築戸建て

    大府市長根町6丁目

    4SLDK (107.02㎡)

    3,899万円

  4. 高浜市湯山町4丁目16-11『仲介手数料無料』新築戸建て

    高浜市湯山町4丁目

    4LDK (97.94㎡)

    2,790万円

高浜市稗田町5丁目7-2『仲介手数料無料』新築戸建て

高浜市稗田町5丁目7-2『仲介手数料無料』新築戸建て

2,790万円

-

3SLDK(102.87㎡)

お気軽にお問い合わせください

無料お問い合わせ

株式会社アーキ

0120-613-660

09:00~18:00

(休:水曜日)